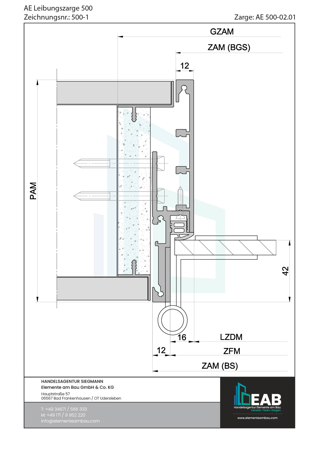
S osnovnim okvirom i aluminijskim profilom za završetak žbuke za ugradnju u ravnini sa zidom, dvostruki, za ravna vrata
AE Dovratnik 500-1
S osnovnim okvirom i aluminijskim profilom za završetak žbuke za ugradnju u ravnini sa zidom, dvostruki, za staklena vrata
AE Dovratnik 500-1
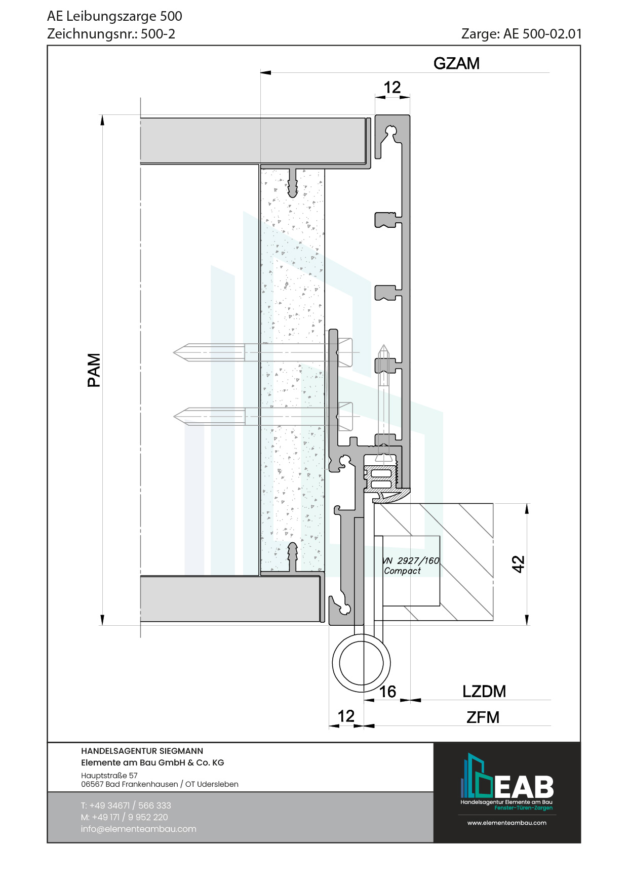
S osnovnim okvirom i aluminijskim profilom za završetak žbuke za ugradnju u ravnini sa zidom, dvostruki, za staklena vrata s posebnim okovom
AE Dovratnik 500-2
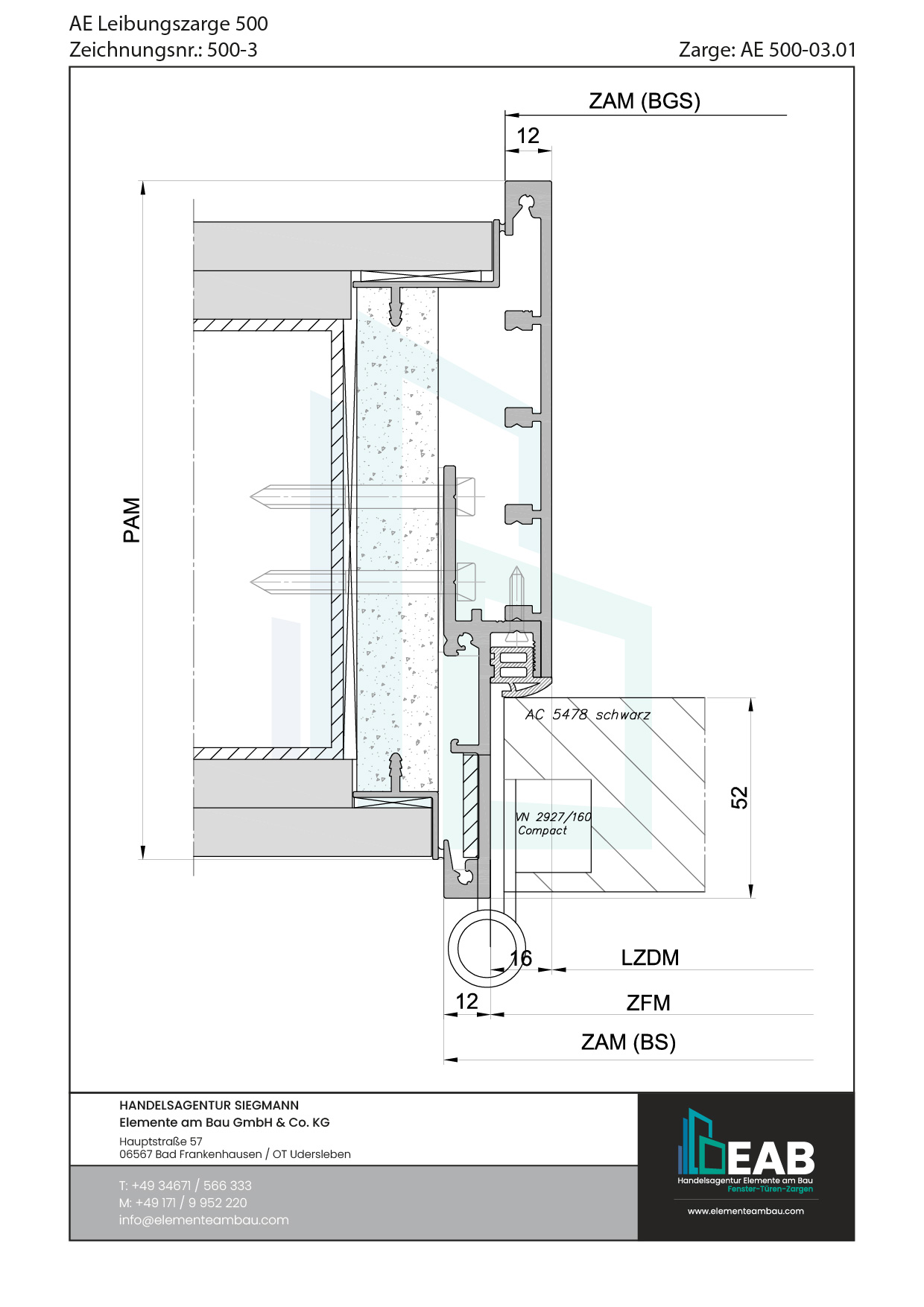
S osnovnim okvirom i aluminijskim profilom za završetak žbuke za ugradnju u ravnini sa zidom, dvostruki, za ravna vrata
AE Dovratnik 500-3
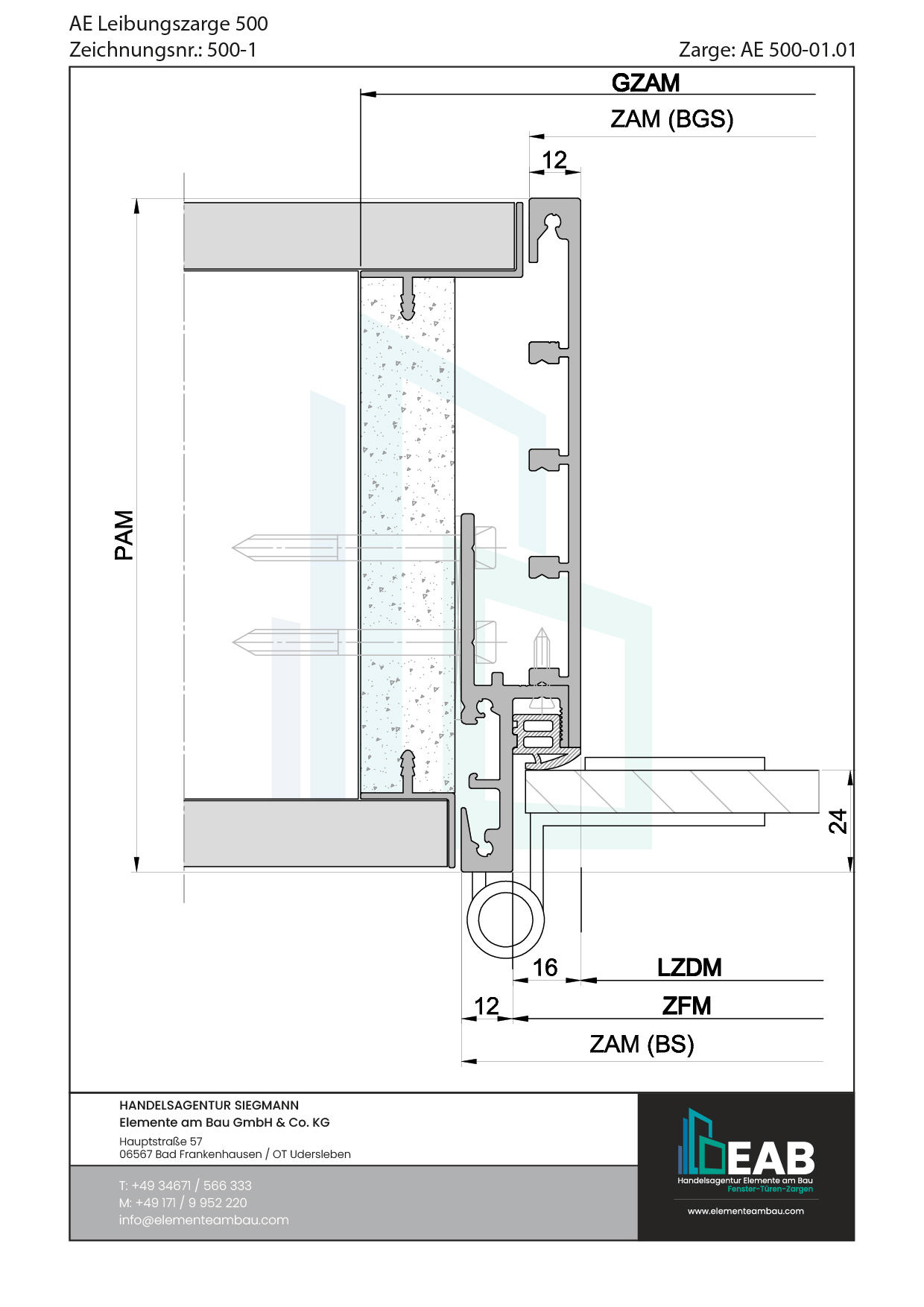
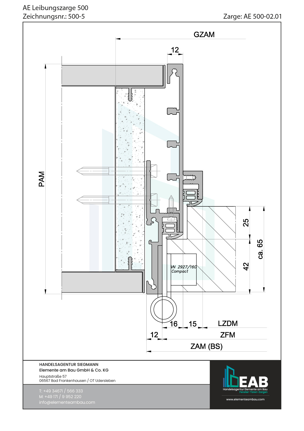
S osnovnim okvirom i aluminijskim profilom za završetak žbuke za ugradnju u ravnini sa zidom, dvostruki, za ravna vrata
AE Dovratnik 500-5
S osnovnim okvirom i aluminijskim profilom za završetak žbuke za ugradnju u ravnini sa zidom, dvostruki, za ravna vrata s dvostrukim falcom
AE Dovratnik 500-6
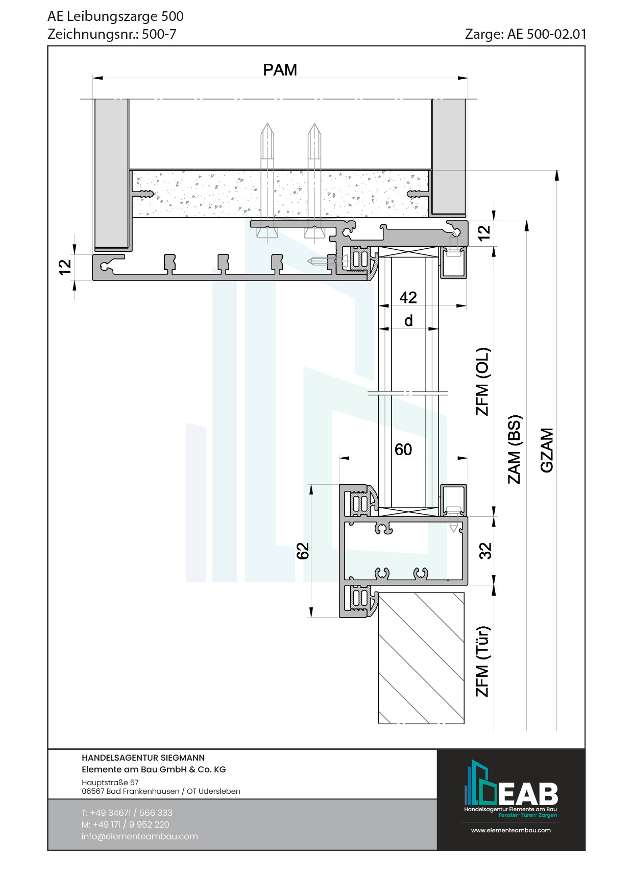
S osnovnim okvirom i aluminijskim profilom za završetak žbuke za ugradnju u ravnini sa zidom, dvostruki, s dvostrukim falcom, za ravna vrata
AE Dovratnik 500-7
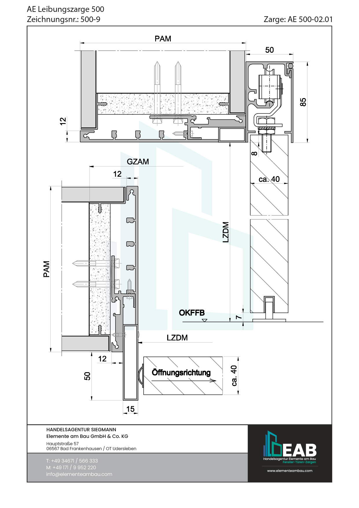
Za ugradnju u ravnini sa zidom, dvostruki, izvedba s gornjim i bočnim ostakljenjem, za ravna vrata
AE Dovratnik 500-9
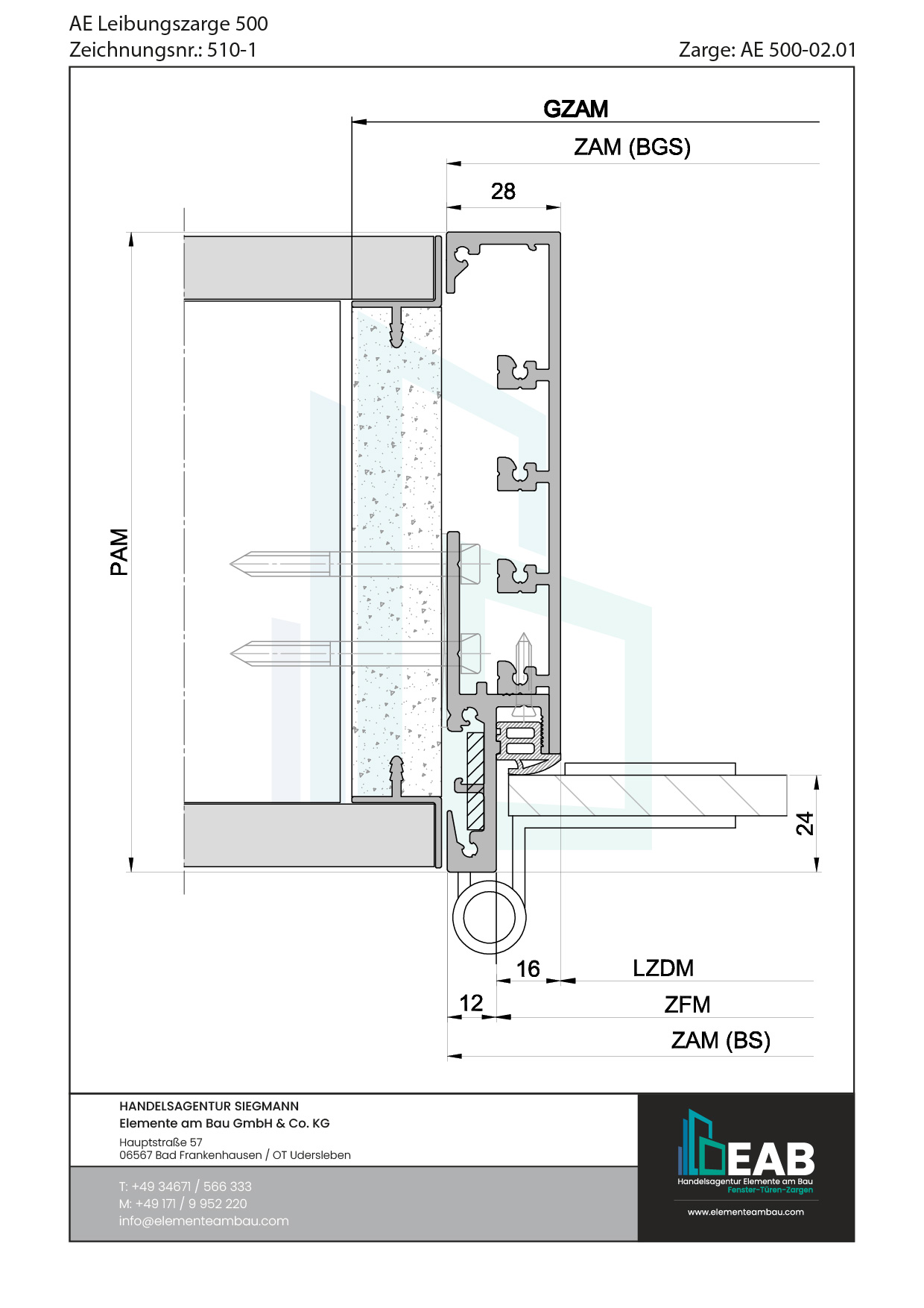
S osnovnim okvirom i aluminijskim profilom za završetak žbuke za ugradnju u ravnini sa zidom, izvedba kao okvir kliznih vrata koja se kreću ispred zida
AE Dovratnik 510-01
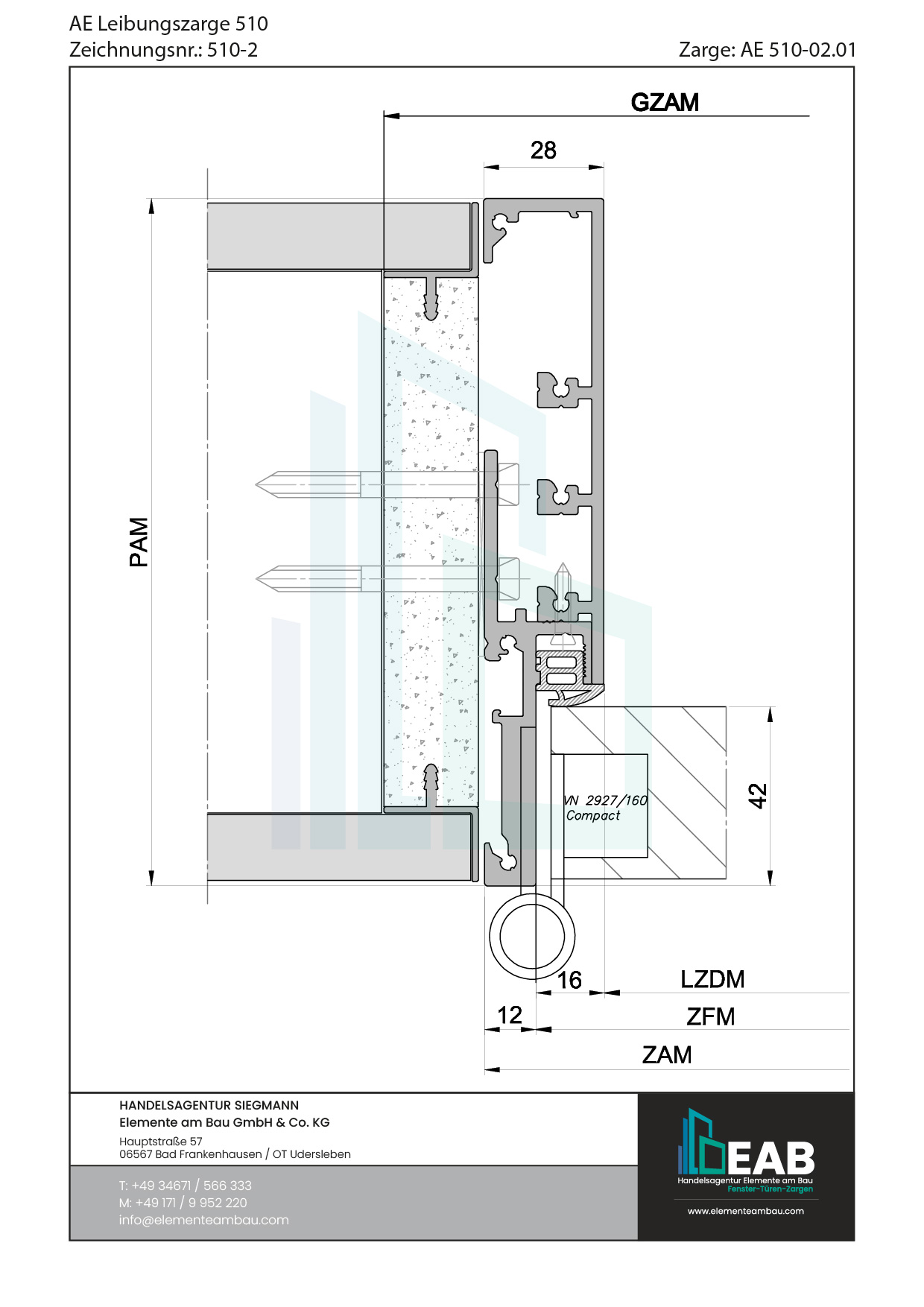
S osnovnim okvirom i aluminijskim profilom za završetak žbuke za ugradnju u ravnini sa zidom, dvostruki, za staklena vrata
AE Dovratnik 510-02
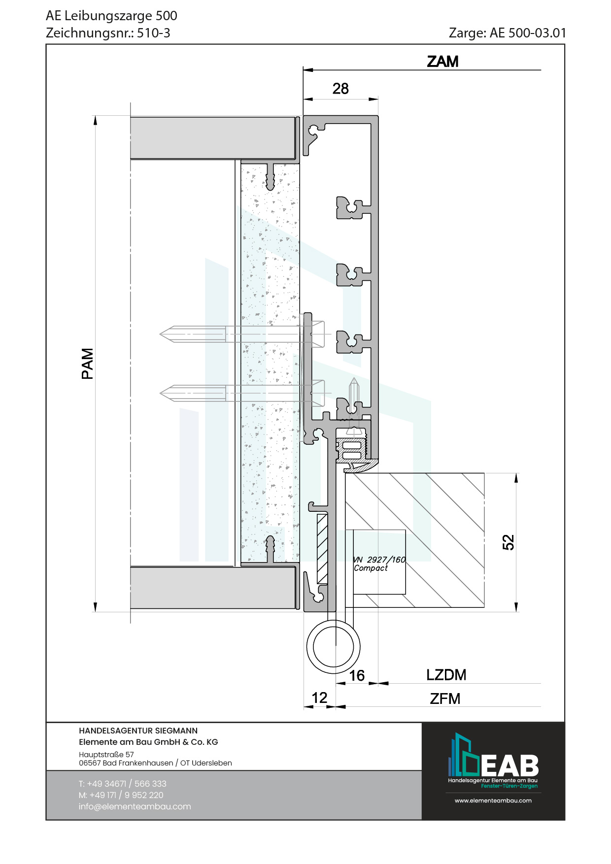
S osnovnim okvirom i aluminijskim profilom za završetak žbuke za ugradnju u ravnini sa zidom, dvostruki, za ravna vrata
AE Dovratnik 510-03
S osnovnim okvirom i aluminijskim profilom za završetak žbuke za ugradnju u ravnini sa zidom, dvostruki, za ravna vrata
AE Dovratnik 510-06
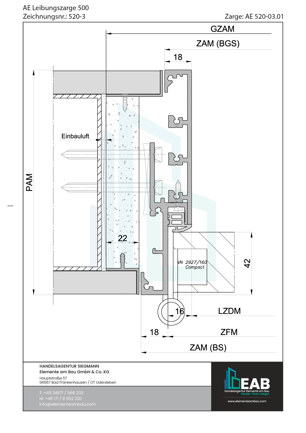
Izvedba kao okvir za sportsku dvoranu za ugradnju u ravnini sa zidom, dvostruki, za ravna vrata s utorom
AE Dovratnik 520-03
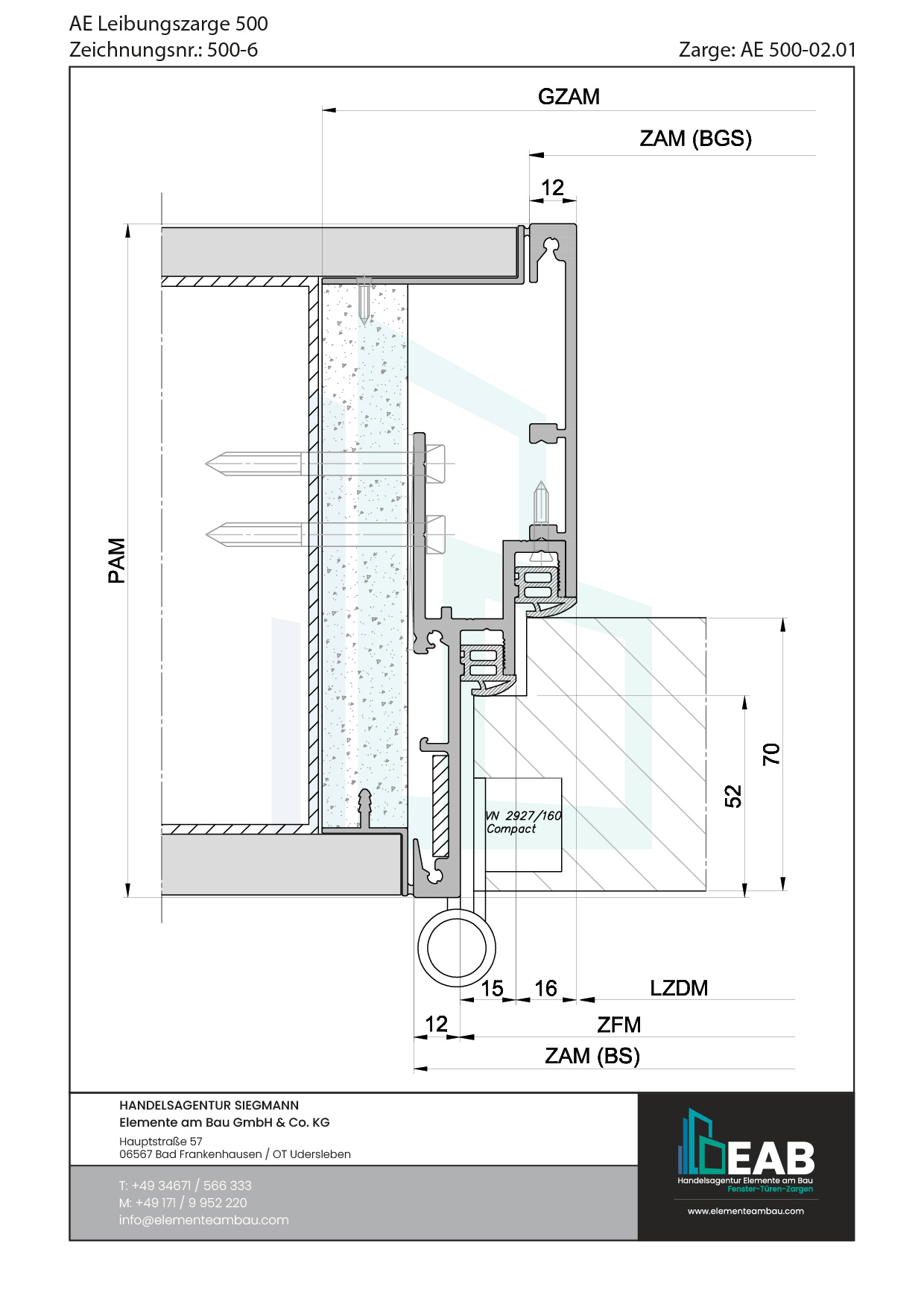
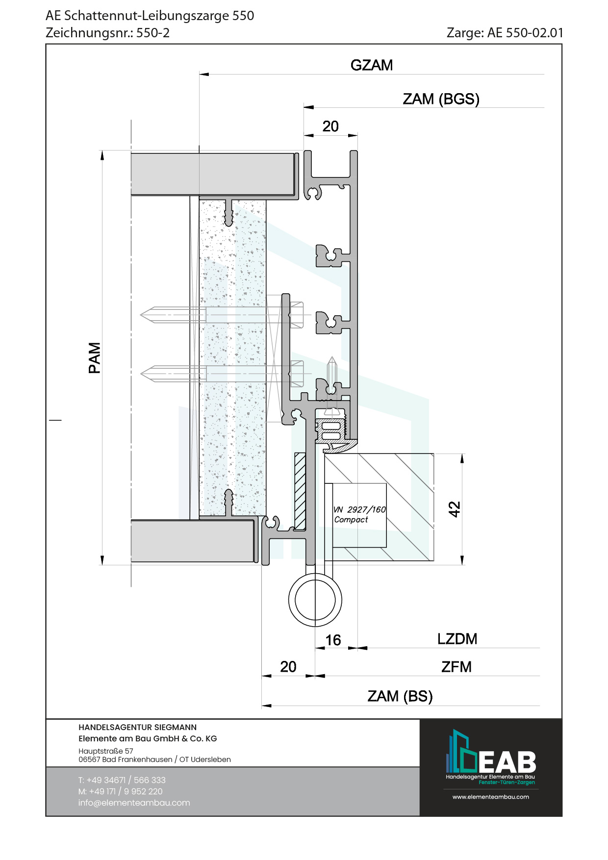
S osnovnim okvirom i aluminijskim profilom za završetak žbuke za ugradnju u ravnini sa zidom, dvostruki, za ravna vrata
AE Dovratnik sa sjenom 550-02
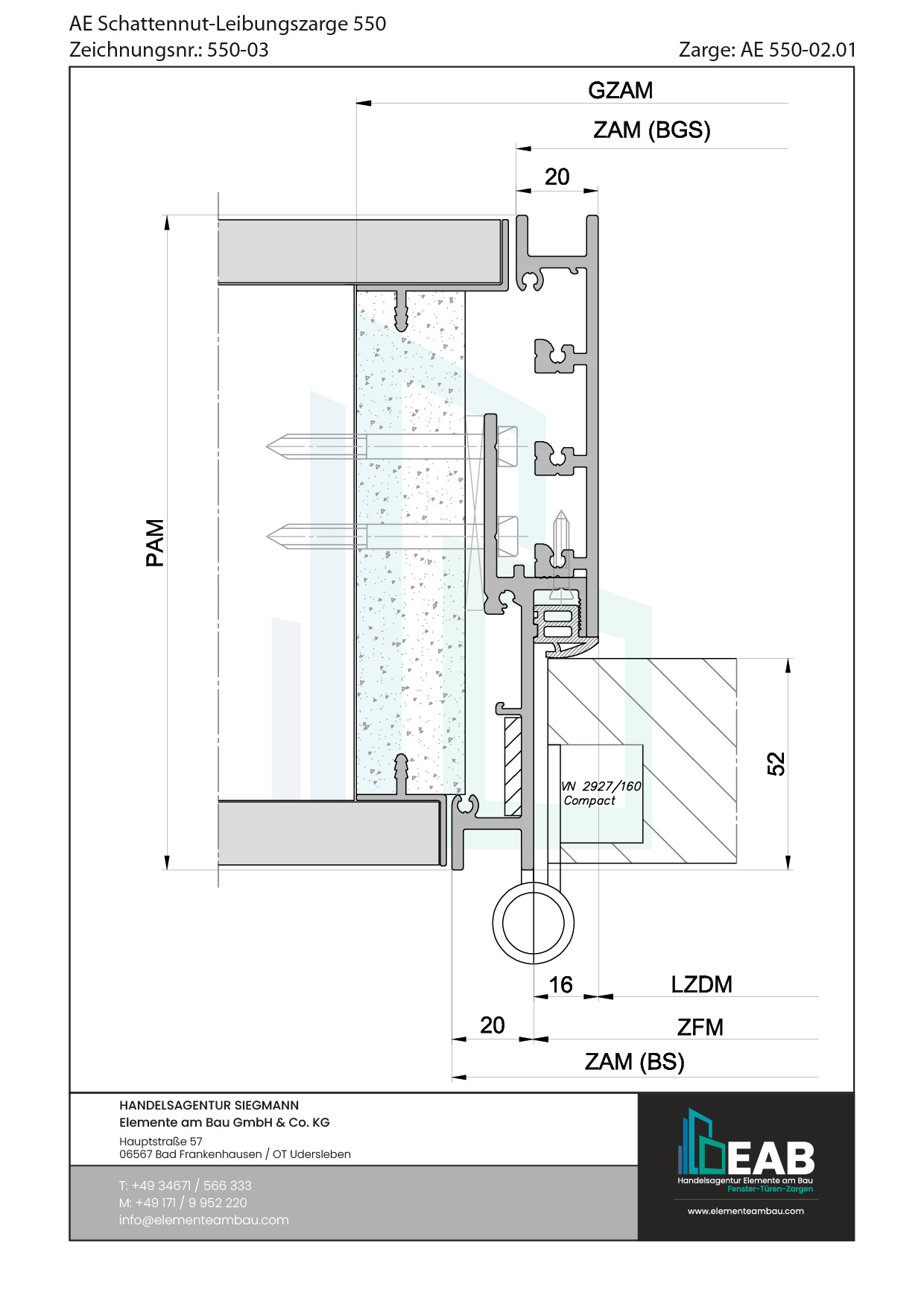
S osnovnim okvirom i aluminijskim profilom za završetak žbuke za ugradnju u ravnini sa zidom, dvostruki, za ravna vrata
AE Dovratnik sa sjenom 550-03
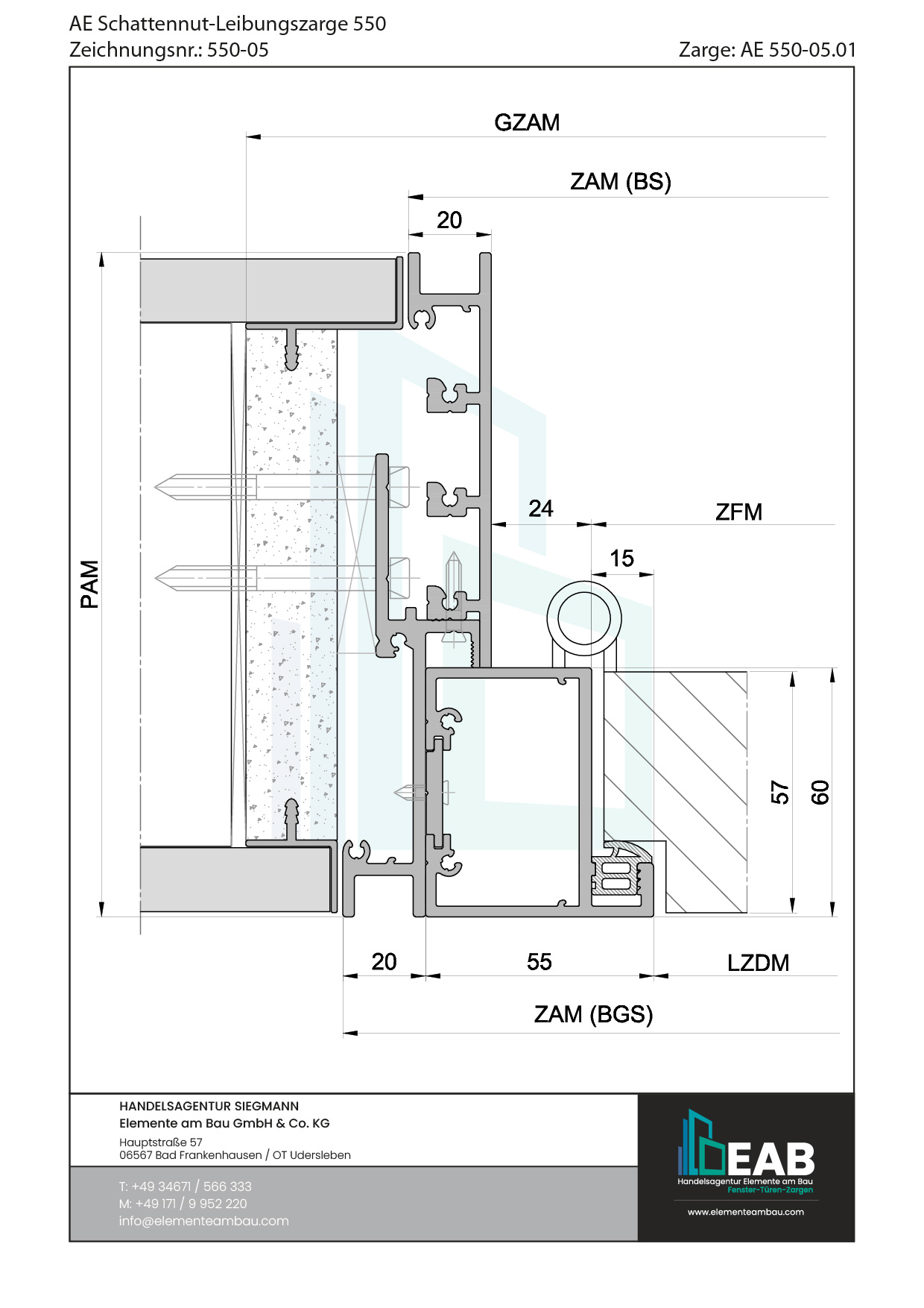
S osnovnim okvirom i aluminijskim profilom za završetak žbuke za ugradnju u ravnini sa zidom, dvostruki, za ravna vrata
AE Dovratnik sa sjenom 550-05
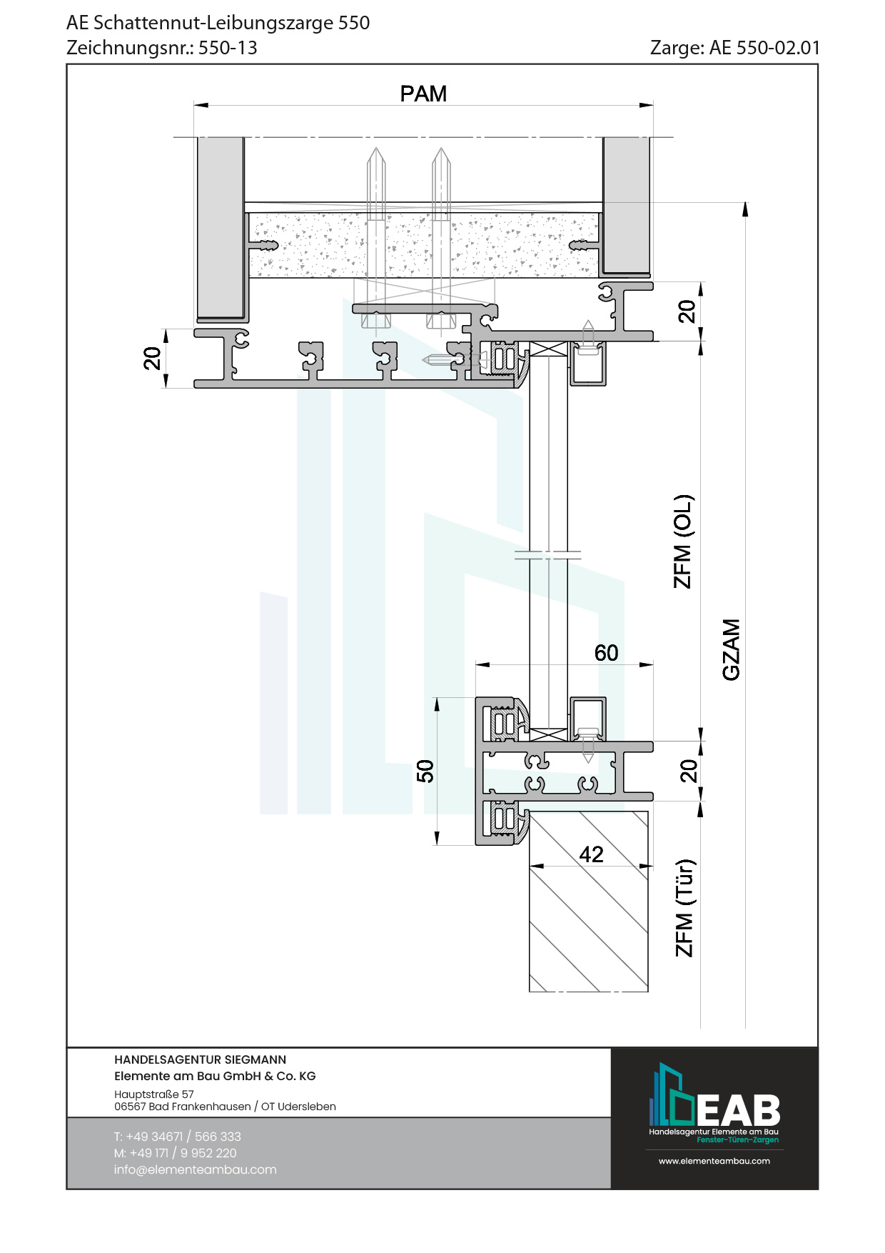
S osnovnim okvirom i aluminijskim profilom za završetak žbuke za ugradnju u ravnini sa zidom, dvostruki, za ravna vrata
AE Dovratnik sa sjenom 550-13
S osnovnim okvirom i aluminijskim profilom za završetak žbuke za ugradnju u ravnini sa zidom, s nadsvjetlom za gornje i bočno ostakljenje, dvostruki, za ravna vrata
Postavke kolačića
Kako biste mogli u potpunosti koristiti našu web-stranicu, potrebni su kolačići. Neki od tih kolačića nužni su kako bi stranica uopće funkcionirala, dok su drugi potrebni samo za ugodnije korisničko iskustvo ili za našu statistiku. Svoju privolu možete u svakom trenutku povući. Više informacija pročitajte ovdje Više.
Ova web-stranica koristi kolačiće dok pregledavate stranicu. Od tih kolačića, u vašem se pregledniku pohranjuju kolačići razvrstani prema potrebi, jer su neophodni za osnovne funkcije web-stranice. Također možemo koristiti kolačiće trećih strana kako bismo analizirali i pratili način na koji koristite ovu web-stranicu. Ovi se kolačići pohranjuju u vašem pregledniku samo uz vašu privolu. Također imate mogućnost deaktivirati te kolačiće. Međutim, deaktiviranje tih kolačića može utjecati na vaše iskustvo pregledavanja.