Okviri za zaštitu od priklještenja prstiju

header_kulturzentrum
Zaštitni okviri protiv uklještenja prstiju

Okviri sa zaštitom od priklještenja prstiju

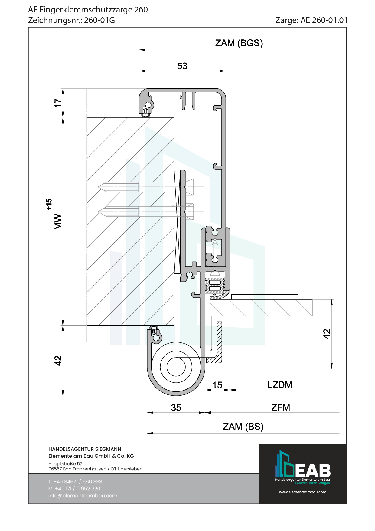
AE okvir za zaštitu od priklještenja prstiju 260-01G


Za gotove zidove, dvostruke, s kompenzacijom debljine zida, za krila staklenih vrata

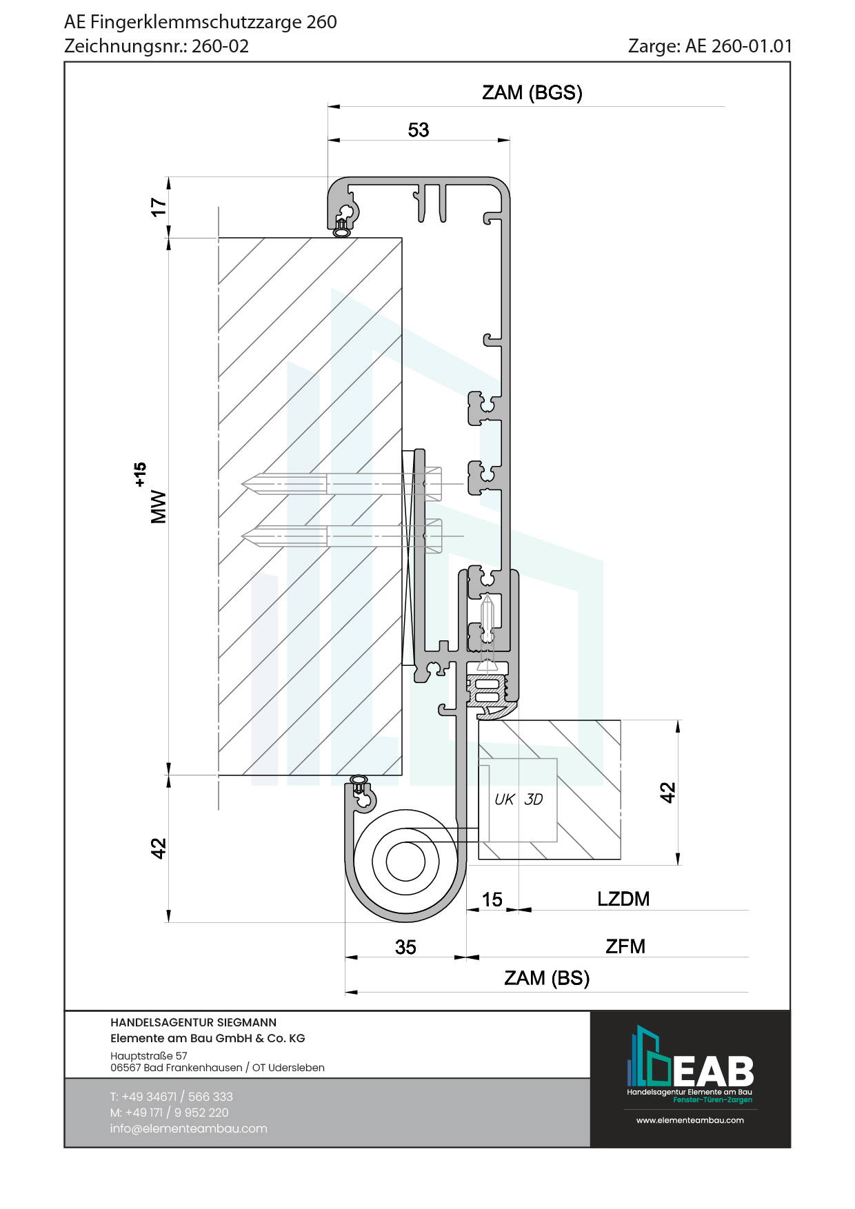
AE okvir za zaštitu od priklještenja prstiju 260-02


Za gotove zidove, dvostruke, s kompenzacijom debljine zida, za ravna krila vrata

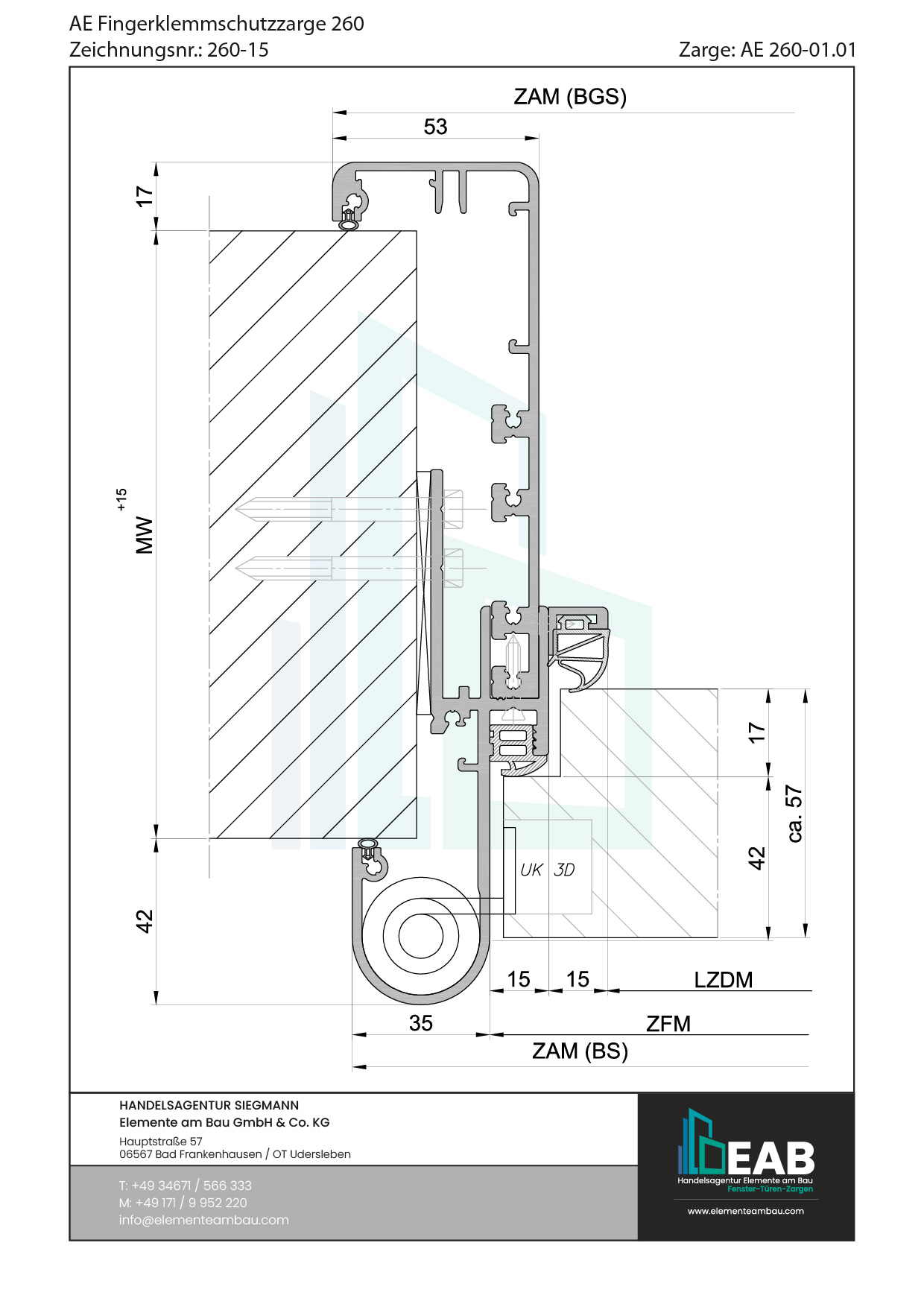
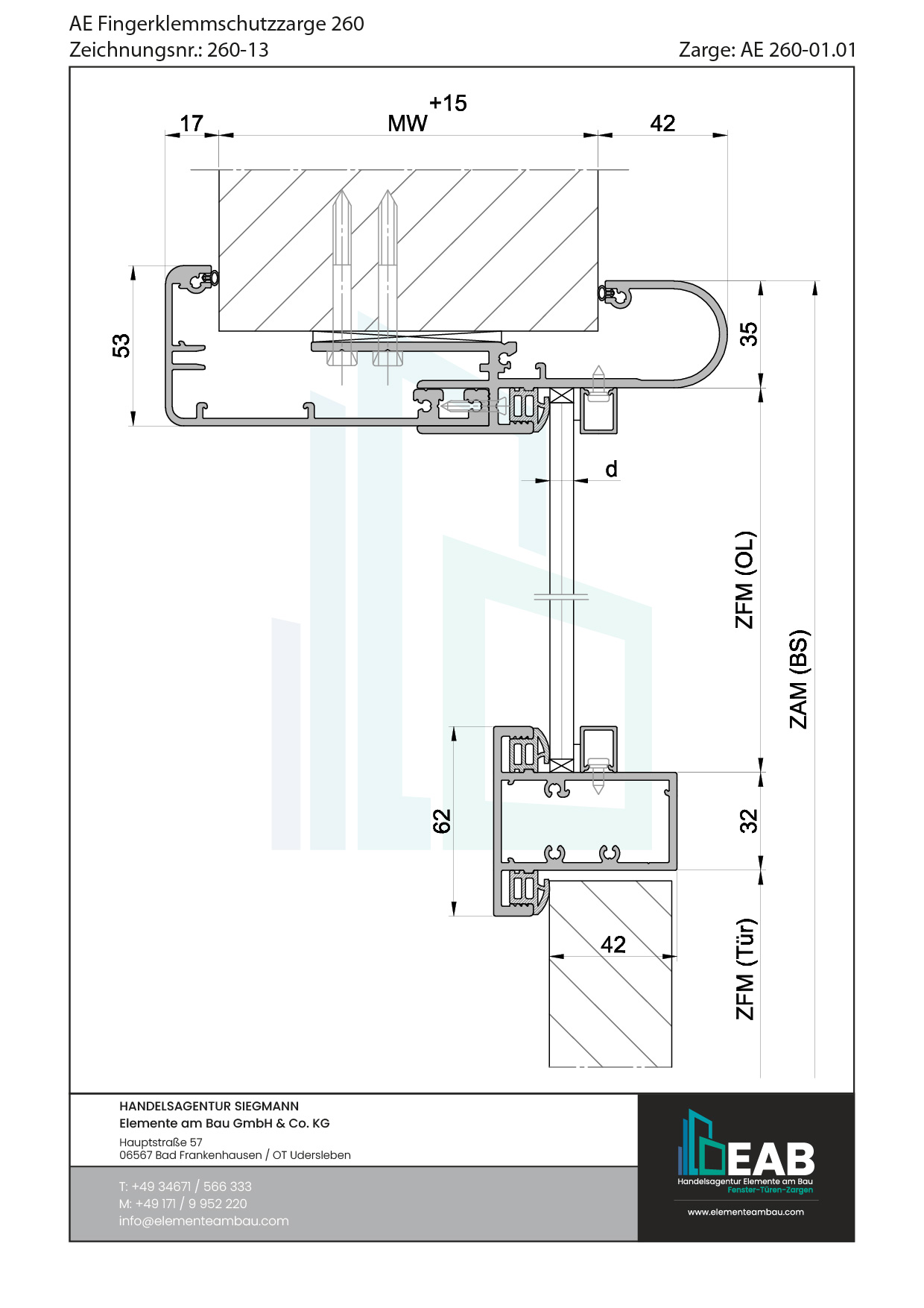
AE okvir za zaštitu od priklještenja prstiju 260-13


Za gotove zidove, dvostruke, s kompenzacijom debljine zida, s nadsvjetlom za gornje i bočno ostakljenje, ravno

AE okvir za zaštitu od priklještenja prstiju 260DF


Za gotove zidove, s obostranom zaštitom od priklještenja prstiju i dodatnim profilom graničnika za izvedbu s dvostrukim falcom, ravno u utoru

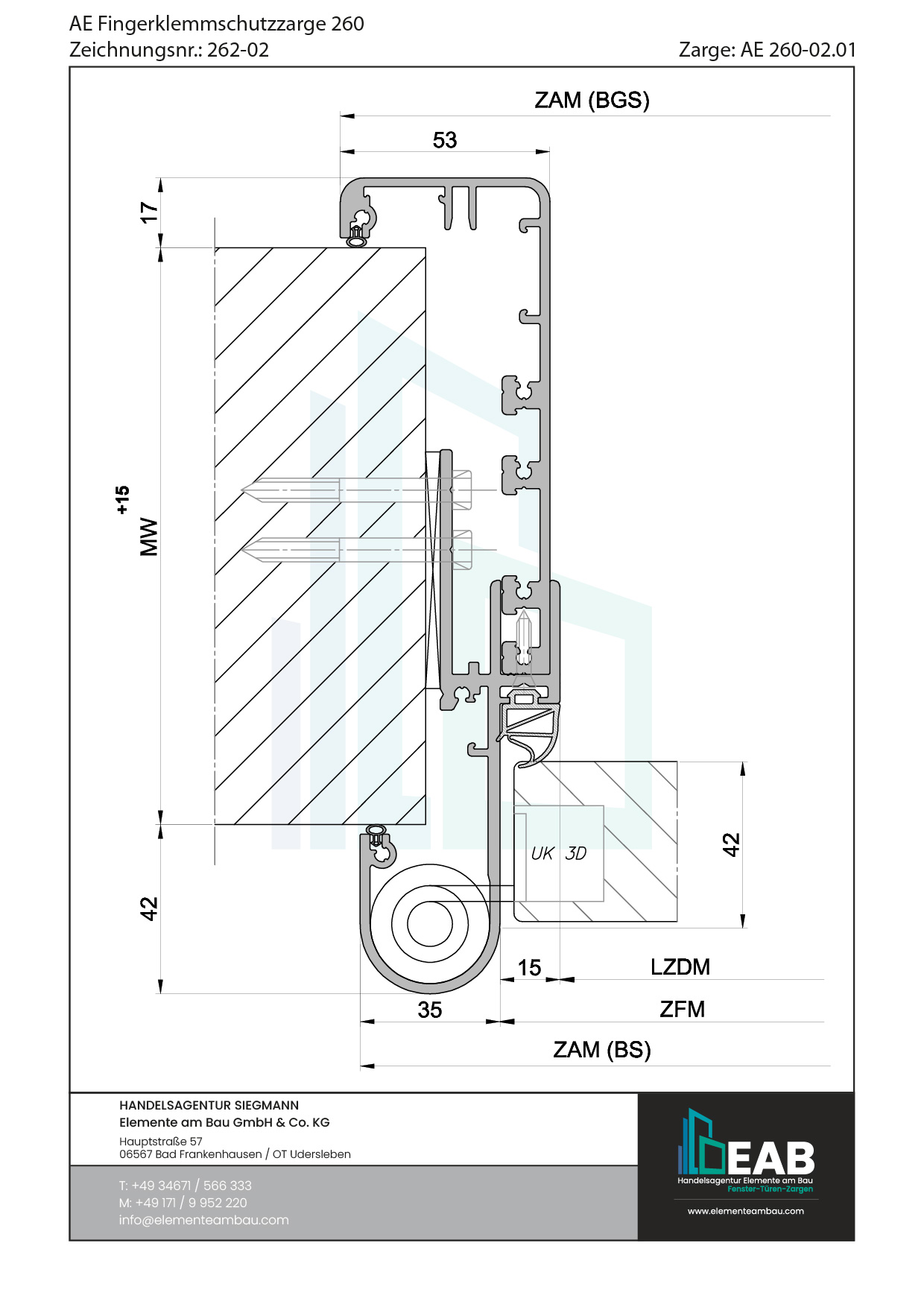
AE okvir za zaštitu od priklještenja prstiju 262-02


Za gotove zidove, dvostruke, s kompenzacijom debljine zida, s obostranom zaštitom od priklještenja prstiju, za ravna krila vrata