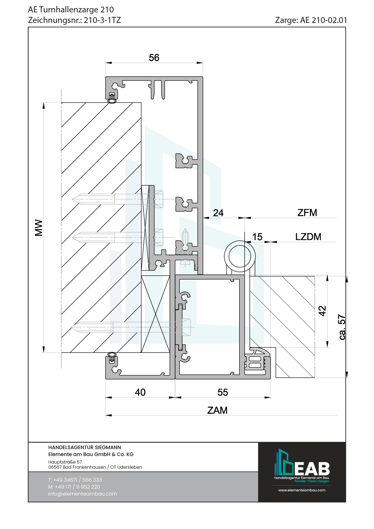
za gotove zidove, dvostruke, bez kompenzacije debljine zida, izvedba kao klizni prozor
Postavke kolačića
Kako biste mogli u potpunosti koristiti našu web-stranicu, potrebni su kolačići. Neki od tih kolačića nužni su kako bi stranica uopće funkcionirala, dok su drugi potrebni samo za ugodnije korisničko iskustvo ili za našu statistiku. Svoju privolu možete u svakom trenutku povući. Više informacija pročitajte ovdje Više.
Ova web-stranica koristi kolačiće dok pregledavate stranicu. Od tih kolačića, u vašem se pregledniku pohranjuju kolačići razvrstani prema potrebi, jer su neophodni za osnovne funkcije web-stranice. Također možemo koristiti kolačiće trećih strana kako bismo analizirali i pratili način na koji koristite ovu web-stranicu. Ovi se kolačići pohranjuju u vašem pregledniku samo uz vašu privolu. Također imate mogućnost deaktivirati te kolačiće. Međutim, deaktiviranje tih kolačića može utjecati na vaše iskustvo pregledavanja.